中古マンション
阿倍野区
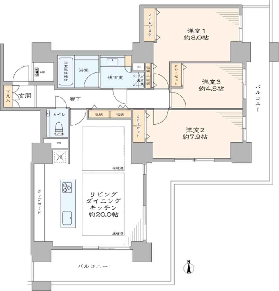
あべのグラントゥール
価格
13,990万円
アクセス
大阪メトロ御堂筋線 天王寺駅 徒歩5分
JR大阪環状線 天王寺駅 徒歩7分
大阪メトロ谷町線 阿倍野駅 徒歩5分
PR
★40階建31階部分 東南角部屋! ★5路線利用可、大阪メトロ御堂筋線天王寺駅まで徒歩5分 ★ペット飼育可(規約有) ★2026年2月リフォーム済み ★充実の共用部分
詳細情報
現況
空家
引渡
相談
取引態様
仲介
学校区
備考
リフォーム内容:クロス貼替、フローリング張替、システムキッチン新調(食洗器付)、洗面化粧台新調、ユニットバス新調(追炊き機能付)、洗浄便座付トイレ新調、給湯器新調、床暖房マット新調、建具・玄関収納等新調、照明器具新設、エアコン一基新設 等









